11411 Cam Ct, Kensington, MD 20895
Toggle Navigation
Images
Videos
Floor Plans
3D Tour
Map
11411 Cam Ct
Kensington, MD 20895
Scroll to Content
Images
Slideshow
Photo Grid
Hide
Previous
Next
Show more
Videos
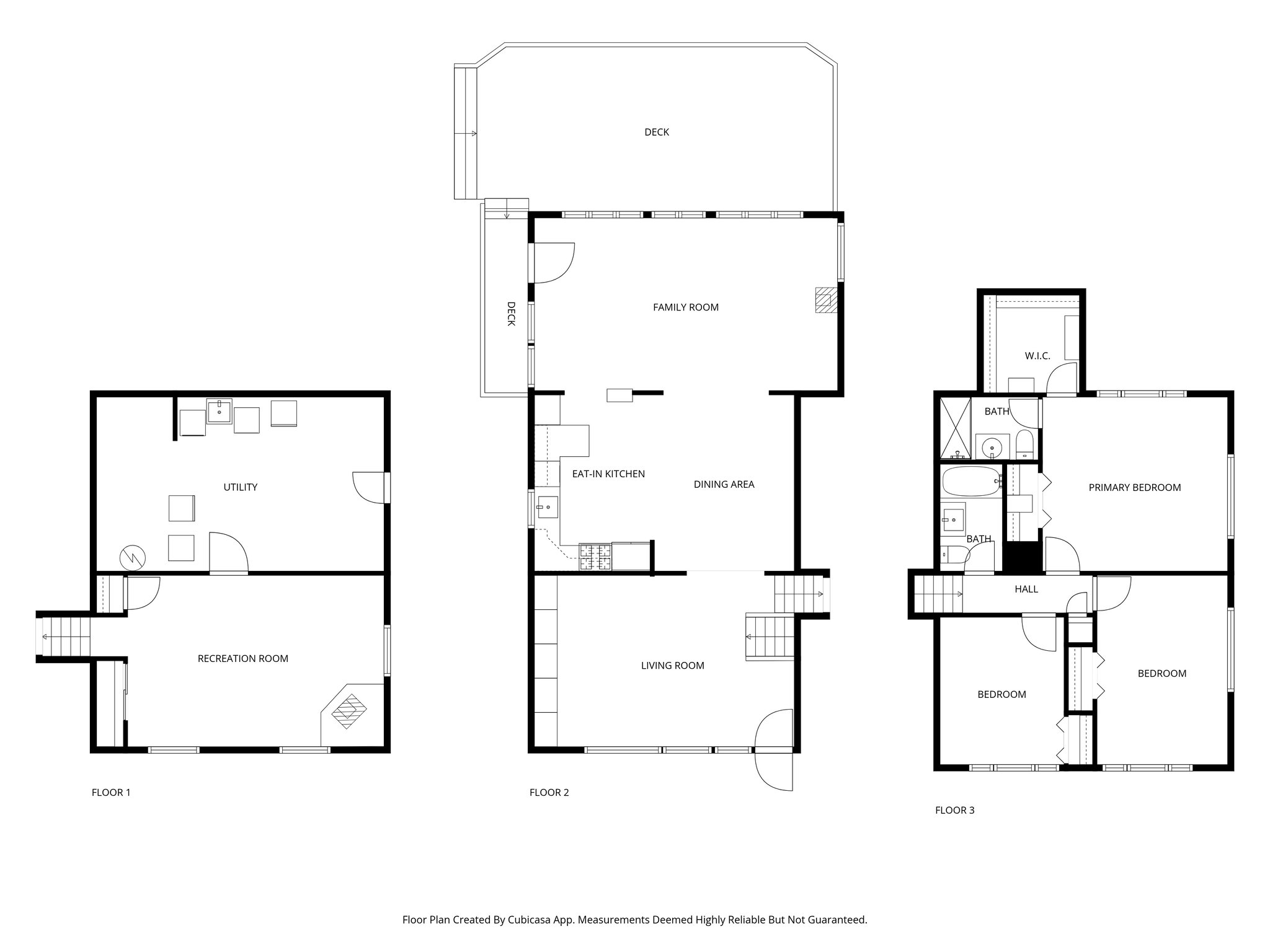
Floor Plans
Slideshow
Photo Grid
Hide
Previous
Next
3D Tour
Content Coming Soon