226 Somerset Dr, Stephens City, VA 22655

Scroll to Content

Details

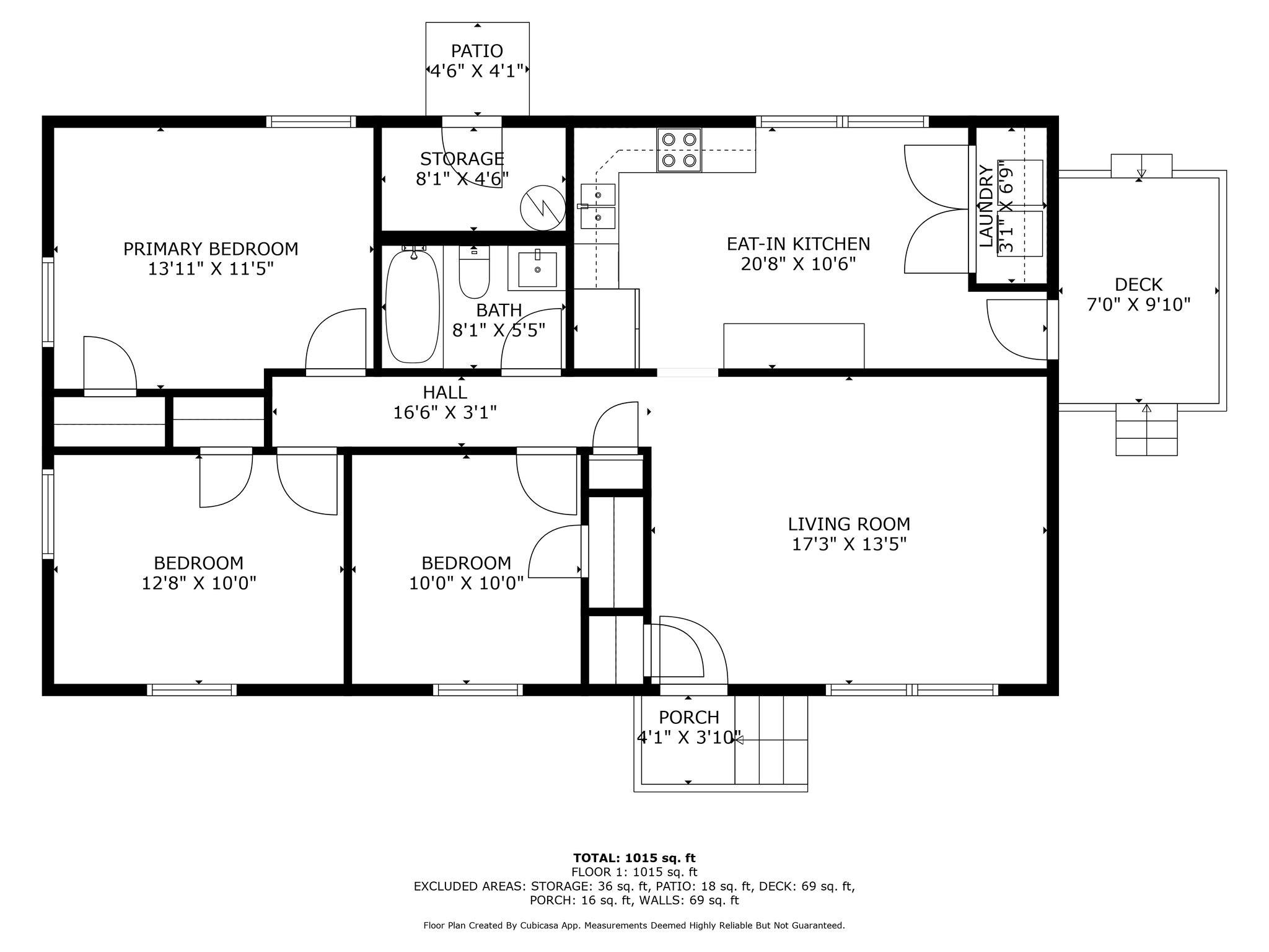
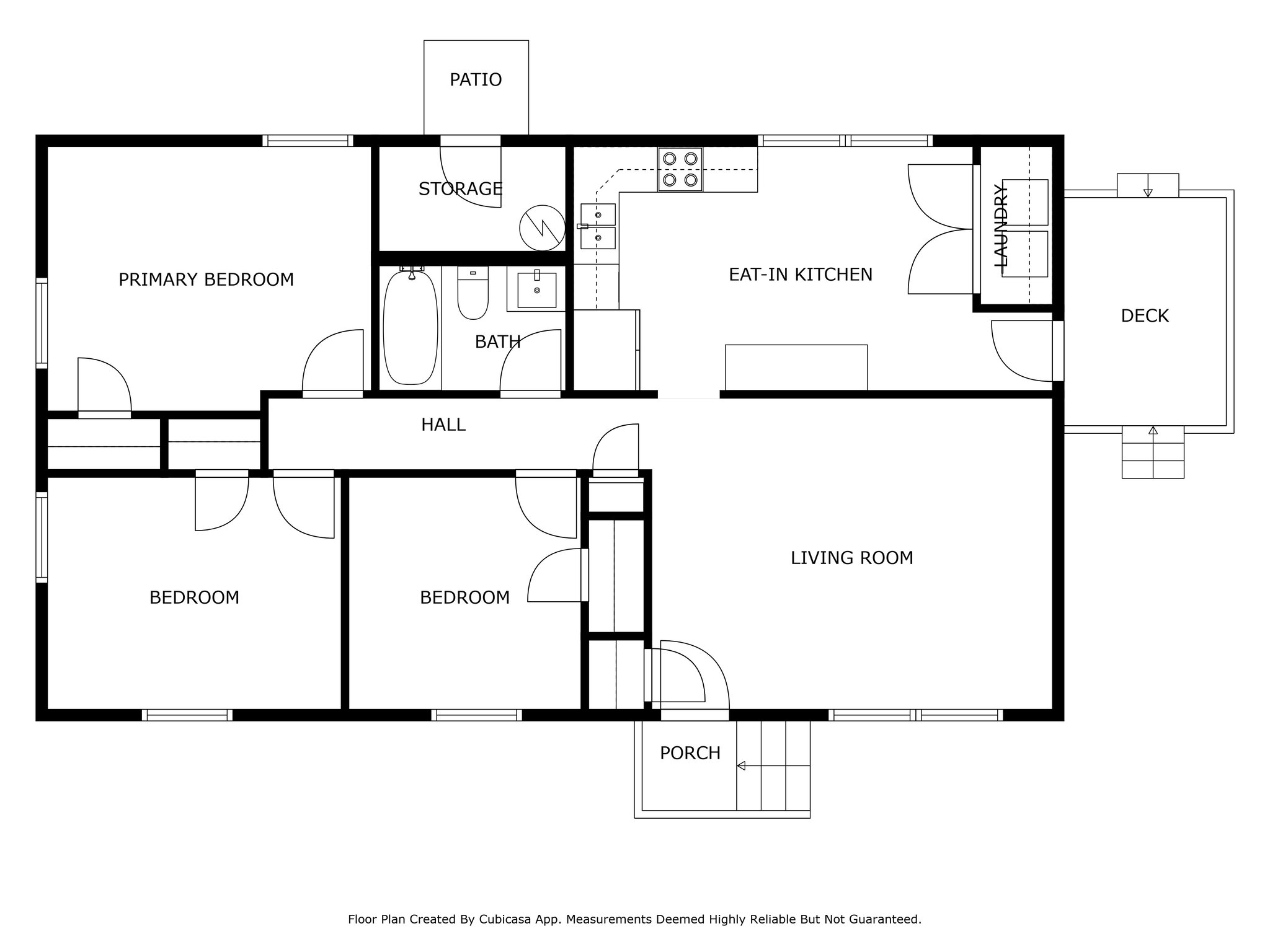
PRICE REDUCED!!! Welcome home to this beautifully updated 3-bedroom rambler, perfectly blending comfort, style, and convenience. Step inside to find hardwood floors and an inviting eat-in kitchen with abundant cabinetry and stainless-steel appliances. Recent upgrades include a newer roof and a new mini-split HVAC system, with electric baseboard heat as a backup for added peace of mind.
The fenced, level backyard offers plenty of space for play, pets, or gardening, complete with a storage shed and peaceful wooded common area views. A deck provides the ideal spot for relaxing or entertaining.
Perfectly located just minutes from shopping, dining, and I-81, this home also offers easy access to Sherando Park, the Bowman Library’s Story Walk on Lake Trail, and fishing at nearby Lakeside Lake. A wonderful starter home or downsizing option in a convenient and scenic setting!

  • $299,999
  • 3 Bedrooms
  • 1 Bathrooms
  • 1,056 Sq/ft
  • Lot 0.23 Acres
  • Built in 1987
  • MLS: VAFV2036932

Images

Floor Plans

3D Tour

Content Coming Soon