13520 Dykeland Rd, Amelia Court House, VA 23002
Toggle Navigation
Images
Floor Plans
Map
13520 Dykeland Rd
Amelia Court House, VA 23002
Scroll to Content
Images
Slideshow
Photo Grid
Hide
Previous
Next
Show more
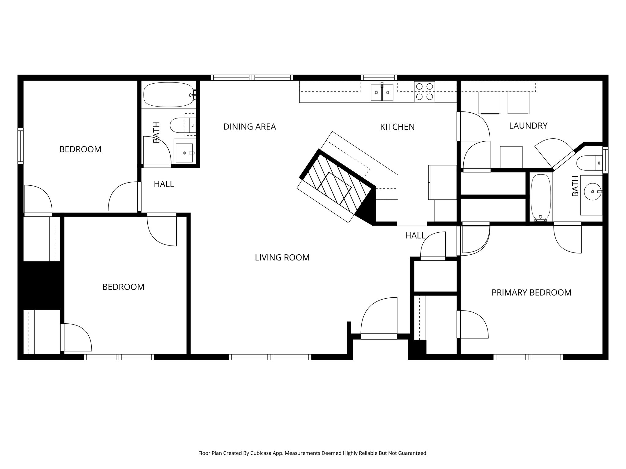
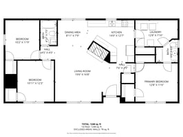
Floor Plans
Slideshow
Photo Grid
Hide
Previous
Next