100 S Shields Ave, Richmond, VA 23220
Toggle Navigation
Images
Videos
Floor Plans
Map
100 S Shields Ave
Richmond, VA 23220
Scroll to Content
Images
Slideshow
Photo Grid
Hide
Previous
Next
Show more
Videos
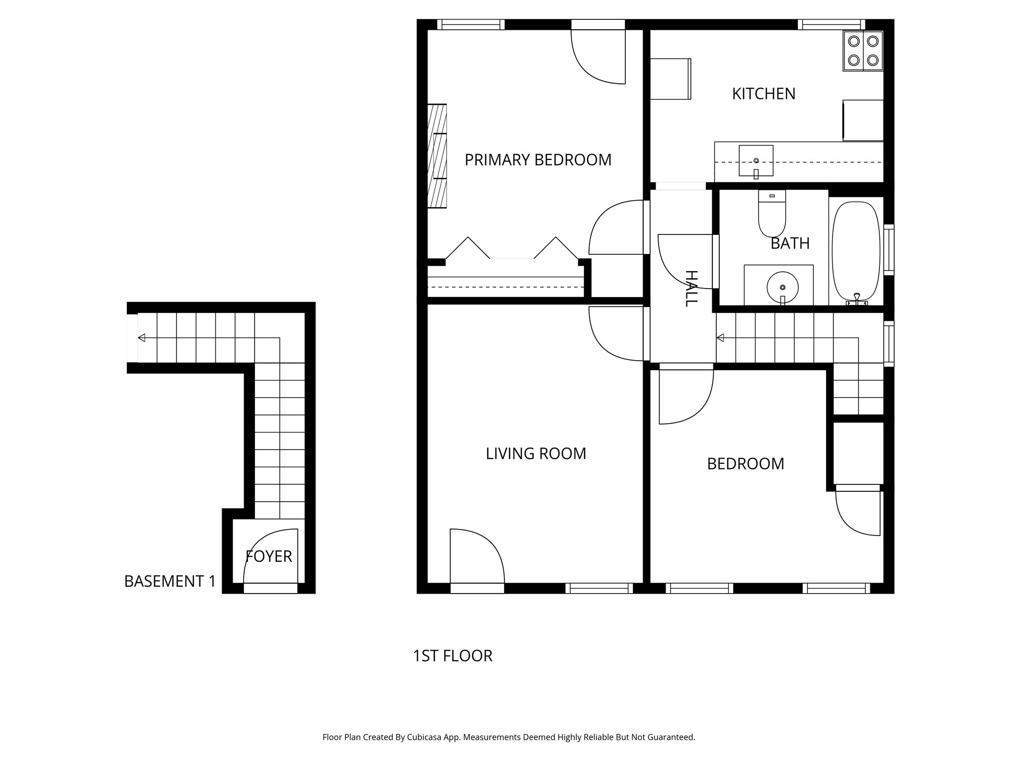
Floor Plans
Slideshow
Photo Grid
Hide
Previous
Next