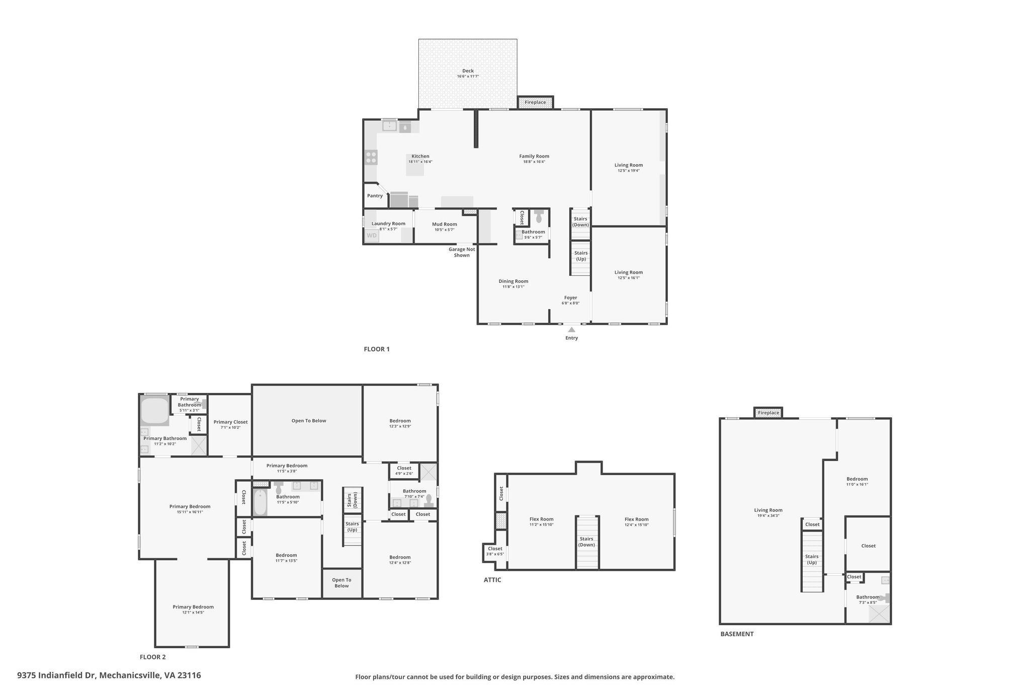
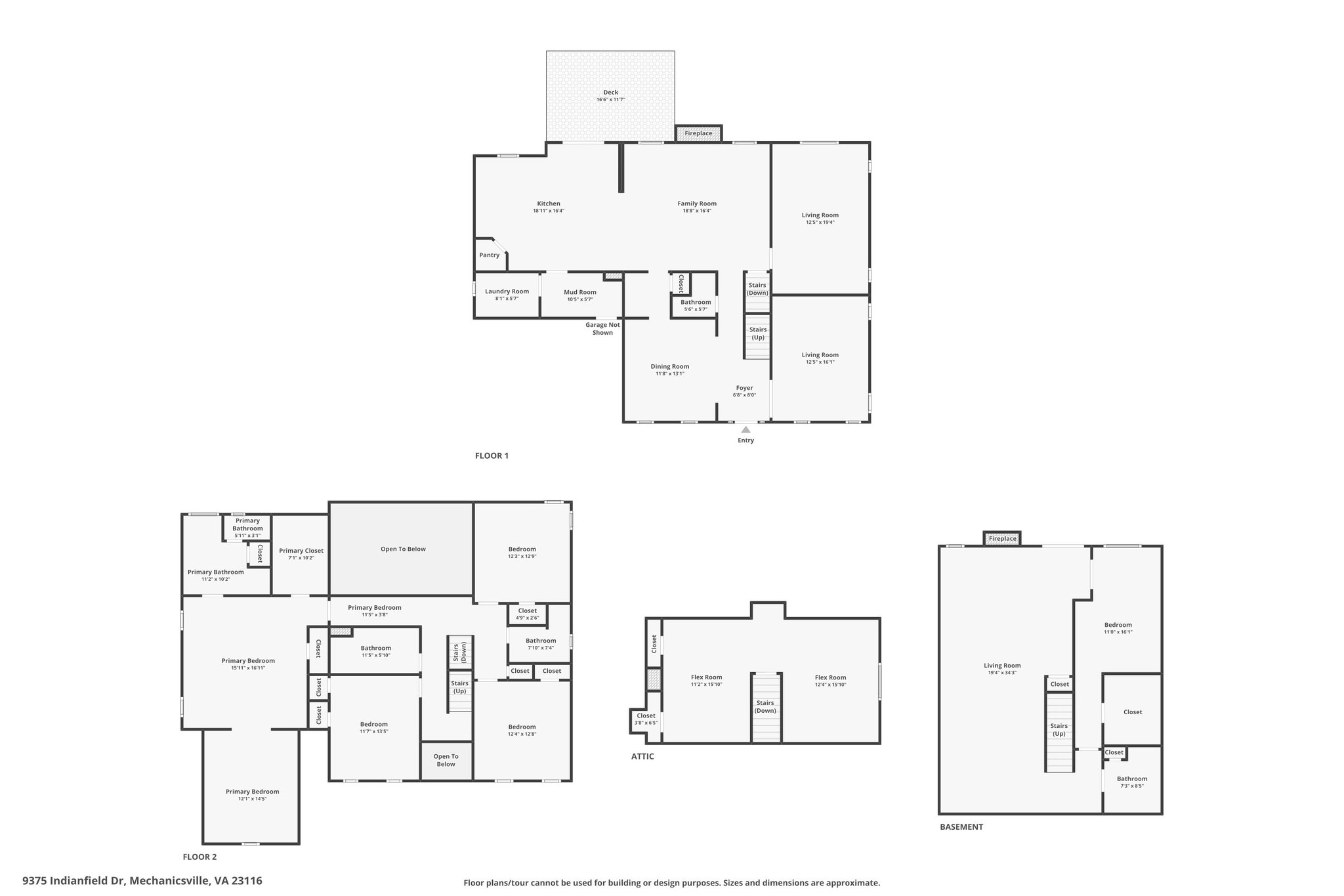
9375 Indianfield Dr, Mechanicsville, VA 23116
Toggle Navigation
Images
Videos
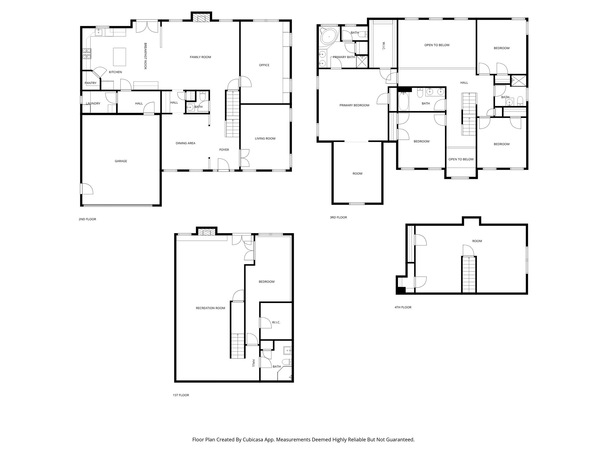
Floor Plans
3D Tour
Map
9375 Indianfield Dr
Mechanicsville, VA 23116
Scroll to Content
Images
Slideshow
Photo Grid
Hide
Previous
Next
Show more
Videos
Floor Plans
Slideshow
Photo Grid
Hide
Previous
Next
3D Tour